南侧海面视角
深圳歌剧院设计概念
在珠三角,深圳与世界一同发展、融于其发展。城市历史、人文环境和展望未来在人性、创新、诗歌和技术中获得交融。在渔业、码头、贸易极其发达的海岸线上,世界级的国际大都市深圳迎来了花漾时节。
本项目围绕以下几个主题进行了构思和设计:浮空的天篷比喻九重葛花;渔网的构筑;岸边、海浪、远山淡影的荡漾。场地的景观、公共入口层和望海路之上的城市广场整合于隐喻海岸线和浪涛的阶梯之上。
桥面视角

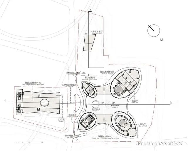
剧场和前厅
在“天地”之间的四个剧场中,观众、演员和科技相遇。像海岛一样的剧场魔术表演一般隐藏、显现于幕帘立面之中。剧场的位置选定取决于对水景、城市和景观的“框景”构建。在巨大前厅里,宛如置身于城市之窗,为前厅活动、教育和学习提供极为灵活的场地。餐厅设计于主入口之上,向前厅与城市广场开敞视线。
交通
主要步行人流来自地铁、广场、和地下通道、海岸线步道及地下车库。望海路的下客点在广场下方的1层,从1层可直接走至B2停车场。望海路设有专门为后勤服务的出入口至B2停车场,在这里可直接接入建筑的后勤区域。
剖面图
南侧鸟瞰视角
坡道眺望蛇口山
东侧鸟瞰视角
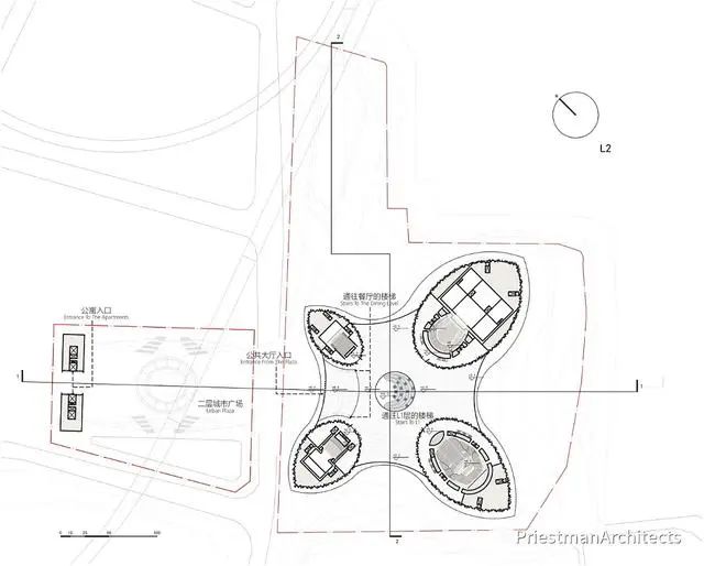
广场、基础设施和地下通道
广场连接主前厅、地铁出入口及广场末端的演员公寓。宽阔的演员公寓塔楼象征着西边的蛇口山。广场通过景观踏步与花园连接,广场下方为办公室及舞台设计空间。为保持与规划的一致性,带有商业功能的人行步道连接至新的地铁站,延伸至望海路上的两个地铁口,形成对B1层的第三级出入口,继而通过大台阶通往大前厅。
面向香港的室内视角
城市艺术客厅视角
室内视角
艺术厅
将场地北侧的独立建筑-艺术厅考虑为景观的组成部分,该建筑已在望海路设有主次出入口关系。
景观
2层和广场考虑为同一“曲面”来设计,在此我们能感受到从海平面到城市的流势。“曲面”延展至艺术厅,从海洞中升起,面向水面,伸至场地边缘成为深圳湾区域最为重要的景观体验场所。室外活跃的景观,健身运动和观景感受同沙滩、水池、岩石、溪流和植栽、红树林形成独特的城市一景。船展、渔业文化和海上生活激活场地边缘,吸引人流到城市的文化中心。
施工方式及环境
浮空的天篷可比作现代机场的屋顶系统,该系统可把设备管道,人工照明等整合进屋顶系统可提高结构的经济性。外层屋顶材料的98%为平面三角形隔热金属板,颜色多样,其余2%为玻璃面板。此设计为前厅带来变化丰富的九重葛花天篷光斑。屋面的8%为太阳能板,为建筑提供额外的电力支持。屋顶系统里层吊顶为金属条网格。入口处的玻璃面板可自动开启来形成穿堂通风。高科技低能耗技术设备会用来减少能耗和碳排放。饰面材料都可就地取材,文化认同感也较强,可有效降低施工中的碳排放和提高地域性。
